ERDGESCHOSS
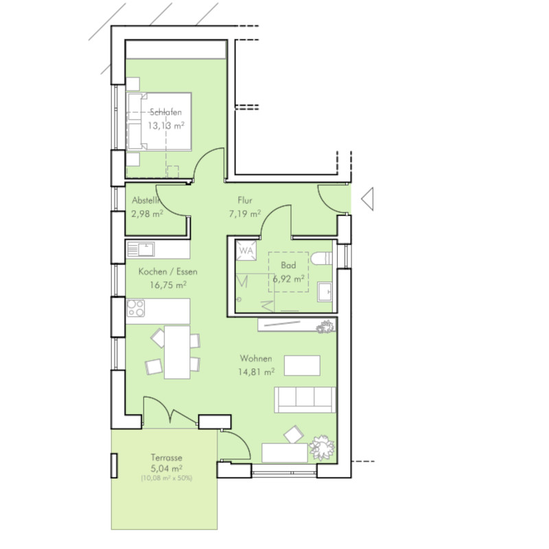
EG | WOHNEN 01
2-Zimmer Wohnung
Küche Essen Wohnen 31.56 m²
Schlafen 13.13 m²
Bad 6.92 m²
Abstellraum 2.98 m²
Flur 7.19 m²
Terasse 1/2 m² 5.04 m²
Gesamt 66.82 m²
EG | WOHNEN 02
3-Zimmer Wohnung
Küche Essen Wohnen 28.92 m²
Schlafen 11.64 m²
Gast 7.70 m²
Bad 6.92 m²
Abstellraum 4.38 m²
Flur 4.11 m²
Terasse 1/2 m² 10.31 m²
Gesamt 73.98 m²
1. Obergeschoss
OG 1 | WOHNEN 03
3-Zimmer Wohnung
Küche Essen Wohnen 31.56 m²
Schlafen 13.13 m²
Gast 13.13 m²
Bad 6.92 m²
Abstellraum 2.98 m²
Flur 7.19 m²
Balkon 1/2 m² 4.00 m²
Gesamt 78.91 m²
OG 1 | WOHNEN 04
2-Zimmer Wohnung
Küche Essen Wohnen 24.90 m²
Schlafen 11.49 m²
Bad 7.42 m²
Abstellraum 3.67 m²
Flur 10.75 m²
Balkon 1/2 m² 4.31 m²
Gesamt 62.54 m²
OG 1 | WOHNEN 05
2-Zimmer Wohnung
Küche Essen Wohnen 25.27 m²
Schlafen 7.70 m²
Bad 6.92 m²
Flur 4.11 m²
Balkon 1/2 m² 4.16 m²
Gesamt 48.16 m²
2. Obergeschoss
OG 2 | WOHNEN 06
3-Zimmer Wohnung
Diele 10.12 m²
Küche Essen Wohnen 29.12 m²
Schlafen 14.12 m²
Gästezimmer 10.49 m²
Bad 7.27 m²
Balkon (West) 1.50 m²
Balkon (Süd) 3.10 m²
Gesamt 75.72 m²
OG 2 | WOHNEN 07
2-Zimmer Wohnung
Küche Essen Wohnen 24.90 m²
Schlafen 11.49 m²
Bad 7.42 m²
Abstellraum 3.67 m²
Flur 10.75 m²
Balkon 1/2 m² 4.31 m²
Gesamt 62.54 m²
OG 2 | WOHNEN 08
2-Zimmer Wohnung
Küche Essen Wohnen 25.27 m²
Schlafen 7.70 m²
Bad 6.92 m²
Flur 4.11 m²
Balkon 1/2 m² 4.16 m²
Gesamt 48.16 m²








